ZW20-12F系列户外高压交流分界真空断路器为额定电压12kV,三相交流50Hz的高压户外开关设备,主要采用来开断关合农网、城网和小型电力系统的负荷电流、过载电流、短路电流。
型号及含义

主要技术参数

该产品总体结构为三相共箱式,三相真空灭弧室于金属箱内,变压性能可靠,绝缘强度高。本系列产品的操动机构为弹簧储能式,分为电动和手动两种。
断路器符合GB1804、DL403、GB11022等标准的规定,无论是在正常使用条件还是在故障条件(特别是短路情况)下,只要在断路器的极数参数范围内,它就可以保证安全、可靠的运行于相应电压等级的电网中。
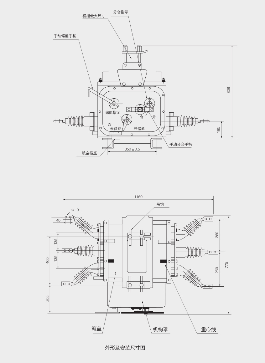
外形及安装尺寸(mm)

一、在产品安装调试期间,公司免费为用户提供技术服务、现场协助调试。在服务过程中,公司无偿向用户说明设备制造情况及技术性能,保证设备安装高度验收合格。
二、产品质保期内,属于正常使用中出现的故障,免费维修,并确保用户反馈意见在最短时间得以解决。受理用户提出的质量问题与服务要求后,正常情况下,市内3小时内赶赴故障现场,若遇到变压器或高、低压关键元器件损坏,保证1-3日内予以修复;外省5小时制定维修方案,24小时内派技术人员到现场处理。
三、产品质保期内,若故障赶时间累计超过30天,则质保期按故障时间的两倍顺延。
四、在安装调试过程中,非我公司原因造成的产品故障,我公司有协助解决问题的义务,但所需费用由需方承担。
五、采购的所有外购件,如有质量问题均由我公司负责。质保期内更换的零部件,自更换之日起保修期为12个月。
六、在产品质保期满后,公司仍将为用户进行延续服务并提供技术支持,以最优惠的价格为用户终身提供所需备品、备件、配件和维修保养技术,费用低于行业价格。